Cavco - The Retreat XL 16602Y

Built by

ManufacturedLot ModelNew

Home  →  Inventory  →  Cavco – The Retreat XL 16602Y

Overview

– Wind zone 2 Construction
– 8′ Ceilings
– Upgraded Insulation
– 12 Year Structural Warranty
– 5 Year Appliance Warranty
– Full Finished Sheetrock
– Front Porch

Share this home
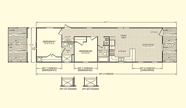
Bedrooms 2
Bathrooms 2.00
Square Feet 810
Length 60' 0"
Width 16' 0"
Sections 1
Stories 1
Style Ranch
Model Year
Price Call for pricing
Serial #

Tours & Videos

No 3d Tour Available

Specifications

No specification data available
Please Note:

All sizes and dimensions are nominal or based on approximate manufacturer measurements. 3D Tours and photos may include retailer and/or factory installed options. The manufacturer and/or retailer reserves the right to make changes due to any changes in material, color, specifications, and features at any time without notice or obligation.

Location

Address

2706 Marshall Dr
Tifton GA, 31793

Schedule a Viewing

If you’d like to see this home in person, just follow the link below to contact us and schedule a tour.

Contact Us
Cavco Home Center of Tifton - Tifton, GA
2706 Marshall Dr
Tifton, GA 31793
Translate »